3 Pièces en excellente condition - Château Perigord II

Dans une résidence avec concierge, cet appartement de deux/trois pièces possède une jolie vue mer. Il est idéalement situé proche de la place des Moulins, de deux supermarchés et de nombreux restaurants et commerces. Un accès aux plages du Larvotto est à proximité.

3 Pièces en excellente condition - Château Perigord II

La Rousse - Saint Roman / Appartement / 3 pièces

6 900 €

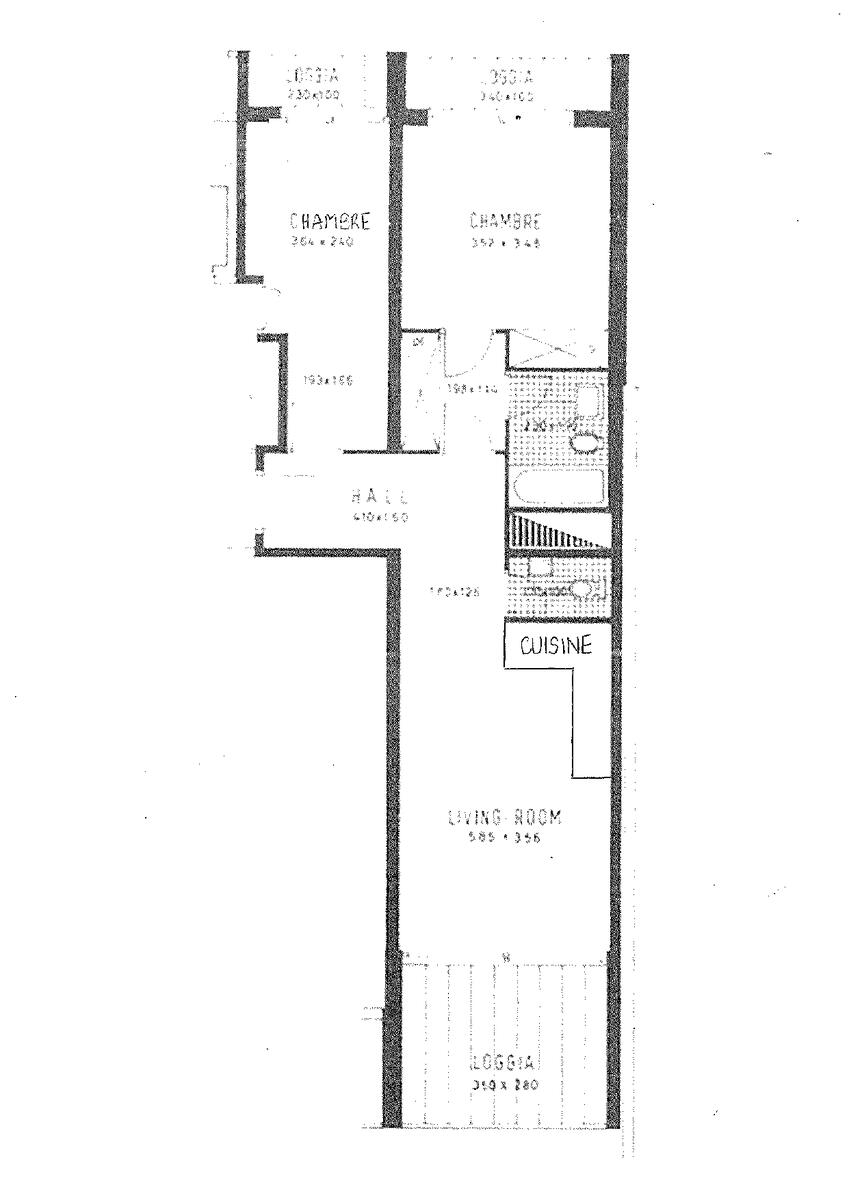
L'appartement  se compose: 

D'une entrée,

Une cuisine US équipée,

Un salon,

Deux chambres,

Une salle de bains,

Un WC indépendant,

Trois loggias.

Possibilité de louer un parking en supplément dans l'immeuble

Emplacement

Informations

Immeuble : Château Perigord II
Quartier : La Rousse - Saint Roman
Ville : Monaco
Pays : Monaco
Superficie terrasse : 10 m²
Superficie totale : 90 m²
Nb. pièces : 3 pièces

Télécharger en PDF